Bild

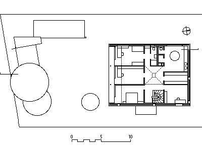
Im Obergeschoß orientieren sich drei gleichgroße Individualräume nach Süden. Die Bäder sind im Nordwesten zusammengefaßt.

0123456789101112

projektebürokontaktimpressum