Bild

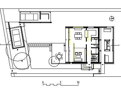
Drei Zonen gliedern das Erdgeschoß: Der Wohn-Essbereich im Süden, dienende Räume in der Mitte, und die Einliegerwohnung im Norden. Garage und Carport schirmen den Garten zur Straße hin ab.

0123456789101112

projektebürokontaktimpressum